Project Type: Sustainable Farm & Market
Location: Beaumont, Texas
Square Footage: 35,000+
Academic Work: University of Houston
Position: 1st Year Graduate in Architecture
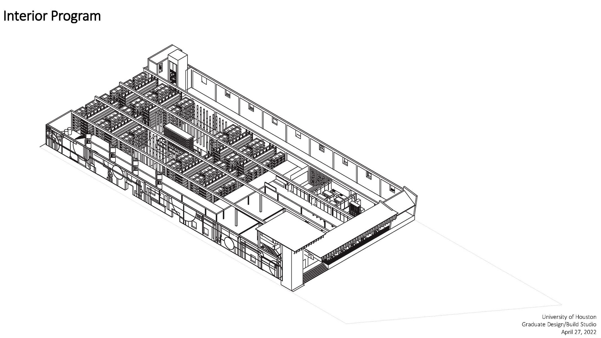
This project was designed by a team of 10 graduate students. While many aspects of this project was designed collaboratively, my role specifically was to design the education zone. 
 Econautics Sustainability Institute approached the University of Houston, with the prompt of utilizing the an abandoned cast in place warehouse built in 1949 to house a vertical farming system that utilized both aquaponics and hydroponics to support food production that could aid in addressing food scarcity needs of the surrounding residents. In addition to food production, this space aims to become a hub for the city of Beaumont, incorporating a farmer's market, education zone, restaurant, demonstration kitchen, outdoor terrace, green roof, solar panels, and rain-water harvesting.
Back to Top