PORTFOLIO
ABOUT ME
ARCHITECTURE
INTERIORS
ART
CV
LEAH RAMIREZ
PORTFOLIO
ABOUT ME
ARCHITECTURE
INTERIORS
ART
CV
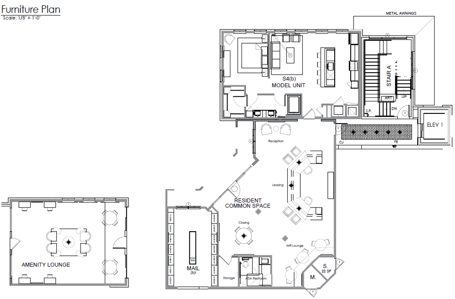
Project Type: Multi- Family Complex (New Construction)
Location: Houston, Tx
Square Footage: 35,728 Scope:2,476
Professional Work: True Interiors
Position: Mid Level Designer
↑
Back to Top